Bucket Elevator Conveyor Chain

FAIZTECH TRADING provides Bucket Elevator Conveyor chain which can withstand to wear resistant and gives a high strength. We provide specific chain for corrosive coal dust and cement conveyance.

We also provide Bucket elevator chains with special connecting link for its easy assembly and disassembly.

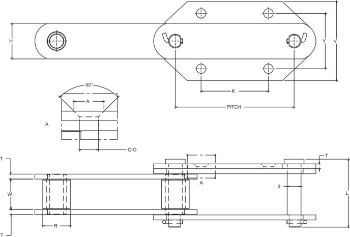
Technical Specifications:

Enquire - Bucket Elevator Conveyor Chain